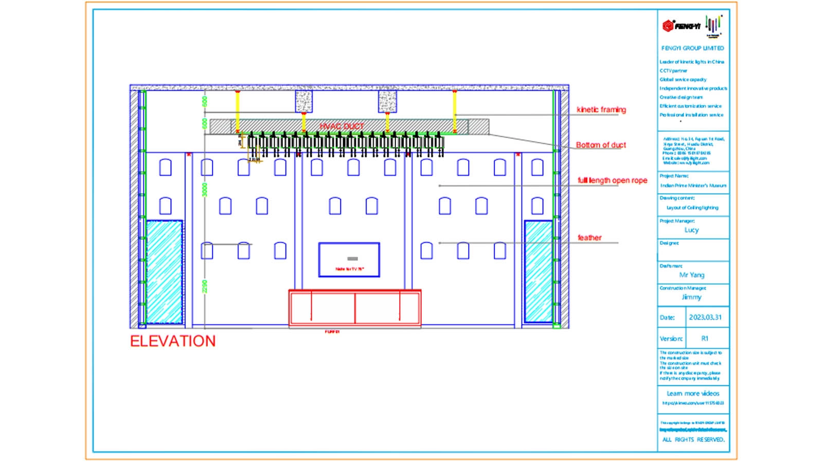
Indian-Valmik Museum Renovation and Expansion Lighting Project-Dynamic LED Feather

For the Valmik Museum Renovation and Expansion Lighting Project in India, the goal was to infuse modern aesthetics while respecting cultural narratives within the exhibition spaces. Our innovative solution prominently featured Dynamic LED Feather fixtures. These unique elements were strategically integrated to provide subtle yet captivating illumination, mimicking the delicate movement and natural grace of feathers. Programmed to cast gentle, shifting glows and soft shadows, they created an ethereal atmosphere that guided visitors through exhibits with a sense of wonder. This sophisticated use of dynamic LED lighting not only modernized the museum's ambiance but also added an artistic, thematic layer, enhancing the storytelling and overall visitor immersion in a truly distinctive way.

2023-03-01
Location
Indian
Product
Dynamic LED Feather

FENG-YI's contribution to the National Museum's creation of a smart light environment, titled "Condensing Light and Shadow, Narrating Millennia", is noteworthy.

Project Background

 The project focuses on bringing cultural artifacts to life through the innovative use of light. 

During the renovation and expansion of the National Museum, the team faced a critical challenge: How to use modern lighting technology to protect the precious artifacts while provide visitors with an extraordinary viewing experience. Following extensive research and a competitive bidding process, Guangzhou FENG-YI Stage Lighting Equipment Co., Ltd. was selected to undertake this significant project due to its innovative lighting solutions and extensive experience in museum and cultural preservation projects.

 

This project demanded extreme caution and creativity: protecting the artifacts while showcasing their beauty; supporting academic research while ensuring an engaging public experience; and seamlessly integrating cutting-edge technology while preserving the museum’s solemn and elegant ambiance.

 The process of bringing cultural artefacts to life through the use of light.  - FENG-YI

◉ Challenges and Requirements

Breaking Through Constraints.

▪Cultural Preservation Challenges
Parameters such as light intensity, ultraviolet (UV) radiation, and infrared (IR) radiation must be strictly controlled to meet conservation standards. Different cultural relic materials have varying sensitivity to light, necessitating customized lighting solutions.
▪Visual Experience Challenges
The key challenges that needed to be addressed were enhancing the detailed features and artistic value of the artifacts through lighting, avoiding glare, and creating a comfortable viewing environment.
▪Technical integration challenges
The museum needed a lighting system that could be intelligently integrated with security and environmental monitoring systems to provide comprehensive artifact protection. Remote control and intelligent dimming capabilities were also essential.
▪Energy Efficiency Requirements
Using high-efficiency light sources and intelligent control systems was necessary to reduce energy consumption while maintaining display quality.

Solution

Perfect balance between technology and preservation.

solutions - FENG-YI

Innovative design philosophy

FENG-YI’s design team proposed the 'see the light, not the fixture' concept. Through precise optical calculations and clever structural design, the lighting fixtures were seamlessly integrated into the display cases and the surrounding architecture, enabling visitors to fully immerse themselves in the historical ambience created by the artefacts.

Professional equipment configuration

▪Cultural Preservation Lighting: Custom-developed LED fixtures with low heat emission and zero UV radiation that meet all conservation standards.

▪Smart Dimming System: Millimetre-level dimming technology enables smooth brightness adjustments.

▪Adjustable colour temperature fixtures: Tailored colour temperatures to best showcase artefacts based on material and historical period.

▪Anti-glare design: Special optical lenses eliminate glare entirely.

Intelligent control system

▪Environmental Sensing System: The lighting is automatically adjusted based on ambient light conditions.

▪Visitor Flow Sensing System: Intelligent lighting modes are activated based on crowd density.

▪Scheduled Scene System: One-touch switching between preset lighting scenes.

▪Remote Monitoring System: Real-time monitoring of the operational status of each fixture.

Implementation Design process

A meticulous and precise engineering feat.

01. Preliminary research phase

The project team conducted in-depth studies on the material properties and preservation requirements of various artefacts.

 

 Together with cultural relic experts, they established detailed lighting standards. Spectral analysis experiments were conducted to determine the optimal lighting parameters for different types of artefact.

02. Prototype testing phase

▪A 1:1 physical simulation of the exhibition area was built for months of testing before formal installation.

▪Light decay testing was carried out to ensure stability.

▪Thermal radiation testing was conducted to confirm that there would be no heat damage to artefacts.

▪Colour rendering testing to guarantee true colour representation.

▪Durability testing was conducted to verify long-term reliability.

03. On-site construction phase

▪Special measures were implemented during installation.

▪All work was conducted outside of opening hours to avoid disruption.

▪Anti-static tools and equipment were used to prevent electrostatic damage to artefacts.

▪Temperature and humidity were monitored throughout the installation process.

▪Parameters were calibrated immediately after each exhibition area was completed.

◉ Exhibition effect

A Historical Dialogue in Light and Shadow

A Historical Dialogue in Light and Shadow - FENG-YI

Upon completion, the quality of the museum's exhibitions was significantly enhanced.

 

In the bronze ware section, for example, precise side lighting highlighted intricate patterns, and shadows added a sense of depth and dimensionality. In the painting and calligraphy hall, soft, even illumination revealed the texture of paper and silk, as well as the layered nuances of ink. In the ceramics section, adjustable colour temperatures provided ideal lighting for ceramics from different dynasties.

 

A particular highlight was the lighting design for the digital exhibition of the iconic Along the River During the Qingming Festival. Precise lighting control combined with multimedia displays created a dynamic day-to-night transition, immersing visitors in the bustling streets of Bianjing during the Northern Song dynasty.

Professional feedback

Widespread recognition

The director of the National Museum remarked: "FENG-YI’s team provided a technical solution and demonstrated a profound understanding of cultural preservation. Every detail reflects professionalism and dedication."

 

Cultural relic experts praised the protective performance of the fixtures: "Rigorous testing confirmed that all lighting parameters remain within safe limits, resolving a long-standing challenge in artefact illumination."

 

Visitors widely reported a significantly improved viewing experience: "Now we can clearly see the details of the artefacts without experiencing eye strain, even after prolonged viewing."

Widespread recognition - FENG-YI

Project value

Comprehensive Benefits Beyond Lighting

▪Cultural preservation value
A complete set of lighting standards has been established for artefact conservation, providing an optimal protective environment.
▪Exhibition enhancement value
Professional lighting design has greatly improved the artistic impact and educational value of the exhibitions.
▪Energy efficiency value
Using LED light sources and intelligent control systems reduced energy consumption by over 60% compared to traditional lighting.
▪Industry benchmark value
The project set a new standard for lighting design in cultural museums, driving technical advancements in the industry.
▪Research value
The spectral data and research findings accumulated during the project provided valuable references for future studies on artefact lighting.

◉ Conclusion

Safeguarding Civilisation with Light

Safeguarding Civilisation with Light - FENG-YI

This project once again demonstrated Guangzhou FENG-YI’s technical expertise and innovative capabilities in professional lighting. While the application context may change — from stage to museum, for example — the understanding and pursuit of light remains constant.

 

'Light is both a carrier and a guardian of civilisation.' The FENG-YI team has contributed to cultural preservation by providing professional technology that enables ancient artworks to be displayed in optimal lighting conditions. Looking ahead, FENG-YI will continue to advance its research into museum lighting, using technological innovation to support cultural preservation.

You may also like

Kinetic Halo Ring——Ideal for a wide range of large-scale events: commercial spaces, TV shows, concerts, nightclubs, and various other settings.

Experience dynamic illumination with the FENG-YI Kinetic Halo Ring. This versatile kinetic light is perfect for large-scale events—commercial spaces, TV shows, concerts, and nightclubs—delivering stunning kinetic ring light effects that captivate every audience.
↳ Read More
Kinetic Halo Ring——Ideal for a wide range of large-scale events: commercial spaces, TV shows, concerts, nightclubs, and various other settings.

Kinetic Arc Light——Ideal for a wide range of large-scale events: commercial spaces, TV shows, concerts, nightclubs, and various other settings.

FENG-YI’s Kinetic Arc Light is a kinetic triangle LED light panel designed for large-scale events. Perfect for commercial spaces, TV shows, concerts, and nightclubs, it delivers dynamic lighting effects that captivate audiences and elevate any setting. Ideal kinetic light solution.
↳ Read More
Kinetic Arc Light——Ideal for a wide range of large-scale events: commercial spaces, TV shows, concerts, nightclubs, and various other settings.

Kinetic Double Rod——Ideal for a wide range of large-scale events: commercial spaces, TV shows, concerts, nightclubs, and various other settings.

FENG-YI’s Kinetic Double Rod delivers dynamic kinetic light effects ideal for large-scale events—from concerts and nightclubs to TV shows and commercial spaces. Elevate your setup with this versatile kinetic light rod, designed for stunning visual impact and seamless integration.
↳ Read More
Kinetic Double Rod——Ideal for a wide range of large-scale events: commercial spaces, TV shows, concerts, nightclubs, and various other settings.

Kinetic Arc Panel——Ideal for a wide range of large-scale events: commercial spaces, TV shows, concerts, nightclubs, and various other settings.

FENG-YI’s Kinetic Arc Panel features dynamic kinetic light technology with kinetic triangle LED light panels, perfect for enhancing large-scale events like concerts, TV shows, nightclubs, and commercial spaces. Elevate your visual experience with innovative, high-impact lighting solutions.
↳ Read More
Kinetic Arc Panel——Ideal for a wide range of large-scale events: commercial spaces, TV shows, concerts, nightclubs, and various other settings.

Kinetic Bulb——Ideal for a wide range of large-scale events: commercial spaces, TV shows, concerts, nightclubs, and various other settings

The FENG-YI Kinetic Bulb delivers dynamic lighting perfect for large-scale events, including commercial spaces, TV shows, concerts, and nightclubs. Experience vibrant, energy-efficient Kinetic Bulb light that transforms any setting with motion and brilliance. Elevate your event lighting today.
↳ Read More
Kinetic Bulb——Ideal for a wide range of large-scale events: commercial spaces, TV shows, concerts, nightclubs, and various other settings

Kinetic Cross-shaped Light——Ideal for a wide range of large-scale events: commercial spaces, TV shows, concerts, nightclubs, and various other setting

FENG-YI’s Kinetic Cross-shaped Light features dynamic kinetic triangle LED light panels, perfect for large-scale events like concerts, TV shows, nightclubs, and commercial spaces. Elevate your venue with vibrant, motion-driven illumination designed for impactful visual experiences.
↳ Read More
Kinetic Cross-shaped Light——Ideal for a wide range of large-scale events: commercial spaces, TV shows, concerts, nightclubs, and various other setting

Kinetic Football Light——Ideal for a wide range of large-scale events: commercial spaces, TV shows, concerts, nightclubs, and various other settings.

The FENG-YI Kinetic Football Light combines dynamic kinetic balls lighting with versatile design, perfect for large-scale events like TV shows, concerts, nightclubs, and commercial spaces. Elevate your venue’s ambiance with this innovative kinetic light ball solution.
↳ Read More
Kinetic Football Light——Ideal for a wide range of large-scale events: commercial spaces, TV shows, concerts, nightclubs, and various other settings.

kinetic Lantern——Ideal for a wide range of large-scale events: commercial spaces, TV shows, concerts, nightclubs, and various other settings.

The FENG-YI kinetic Lantern blends dynamic motion with innovative design, perfect for large-scale events, commercial spaces, TV shows, concerts, and nightclubs. This kinetic pendant light creates captivating visual effects, transforming any environment with elegant kinetic light artistry.
↳ Read More
kinetic Lantern——Ideal for a wide range of large-scale events: commercial spaces, TV shows, concerts, nightclubs, and various other settings.

Get in Touch with FENG-YI

Have questions or ready to illuminate your project? Reach out to our expert team today.

Please enter your name not exceed 100 characters
The email format is not correct or exceed 100 characters, Please reenter!
Please enter a valid phone number!
Please enter your field_1233 not exceed 150 characters
Please select What you're interested in
Please enter your content not exceed 3000 characters

Rest assured that your privacy is important to us, and all information provided will be handled with the utmost confidentiality.

By clicking "Send your message," I agree to your processing my personal data.
To see how to withdraw your consent, how to control your personal data, and how we process it, please see our Privacy Policy and Terms of Use.

Contact customer service

How can we help?

Hi,

We value your needs and feedback. For any inquiries, contact us—we're here to help with expert support. Fill in the details below, and our team will get back to you promptly.

×
Please enter your name not exceed 100 characters
The email format is not correct or exceed 100 characters, Please reenter!
Please enter a valid phone number!
Please enter your field_1233 not exceed 150 characters
Please select What you're interested in
Please enter your content not exceed 3000 characters

Get a free quote

Hi,

Call us to discuss more on your own project!

×
Please enter your name not exceed 100 characters
The email format is not correct or exceed 100 characters, Please reenter!
Please enter a valid phone number!
Please enter your field_1233 not exceed 150 characters
Please select What you're interested in
Please enter your content not exceed 3000 characters

Get the solution

Hi,

Call us to discuss more on your own project!

×
Please enter your name not exceed 100 characters
The email format is not correct or exceed 100 characters, Please reenter!
Please enter a valid phone number!
Please enter your field_1233 not exceed 150 characters
Please select What you're interested in
Please enter your content not exceed 3000 characters

Send my request

Hi,

Call us to discuss more on your own project!

×
Please enter your name not exceed 100 characters
The email format is not correct or exceed 100 characters, Please reenter!
Please enter a valid phone number!
Please enter your field_1233 not exceed 150 characters
Please select What you're interested in
Please enter your content not exceed 3000 characters